
大東海新天地售樓中心
DA DONG HAI XIN TIAN DI SALES CENTER
福州,長樂
城市,是居者的另一個家,不斷賦予其更多屬于未來的生活方式。大東海新天地售樓中心位于福州市長樂區,是長樂"藝術介入,城市興建"的重要實踐,以藝術介入城市發展,以美學介入未來生活,構建滋養城市文明的卓越公共藝術空間,提升品牌,使之成為世界長樂的人文IP,成為世界了解長樂的新"窗口",將現代的建筑語言轉化為富有獨特標識感的"城市櫥窗"。
PROJECTINFORMATION
福州市長樂區作為福州市的門戶,面積約為658 平方公里。項目基地位于長樂區文松路以西,沙壺路以北,距機場約10 公里車程。南部有東湖VR 小鎮,吸引人群消費,示范區北側規劃為商業區, 大大的提高基礎生活服務。


GENERALFLOOR PLAN

01 精神堡壘
02 主入口
03 禮儀廊架
04 組團庭院
05 鏡面水景
06 水上步道
07 層次跌水
08 下沉庭院
09 兒童區
10 休憩區
11 復合球場
12 網球場
13 生態停車場


Place|City and Architecture
建筑的二層體量作為一個整體坐落于一層體量之上,首層采用具有高透性的超白玻,使二層體量遠遠望去仿佛懸浮于城市中的玻璃盒子。同時首層后退引入鏡面水景觀,首層采用的玻璃材質使建筑與水景融為一體;沿主入口方向,由香檳色鋼板材質包裹的主入口門頭符合訪客尺度,成為建筑亮點的同時,還增加了引導性;建筑首層與二層的相互疊合,一氣呵成,形成有著多重感官體驗的城市空間。
Space and Facade-Entity and Void
建筑的兩層體量通過疊合,材質選擇形成了富有視覺張力的建筑形體。首層體量在材質選擇上更接近虛空化,通過高透超白玻打造若有似無的虛空體量;二層則通過藍灰色low-e玻璃,同時結合鋁板造型圍合出類似藍色盒子般的建筑形象,極具特有的空間感和科技感。



建筑二層的出挑部分的露臺作為室內部分與城市的交流空間,結合玻璃幕墻,成為了放松遠眺的不二之選。
Space and Facade-Entity and Void
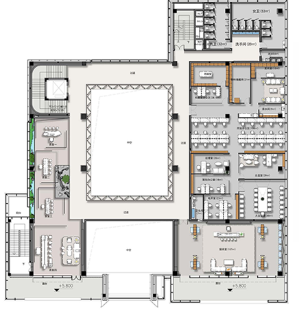
訪客通過室外水景景觀引導進入建筑內部。入口空間平鋪直敘直接銜接展廳,主沙盤連接戶型沙盤及次沙盤空間區域。主展示區由入口門廳的一層空間過渡為二層通高空間,同時及側面玻璃幕墻的光線滲透進來,給訪客帶來豁然開朗的感覺,極具震撼力。主展示區緊鄰觀影廳、水吧、閱覽室等功能布置成開放空間,流線清晰明了,使人身在其中,倍感舒適。
地下一層設施宴會廳及泳池,健身設施等,可以用來滿足不同訪客的需求,其次設置內庭院與之相接,供訪客休憩,私密性好,有悠然自得之感。




項目信息:大東海新天地售樓中心
業主名稱:福建日出東海投資有限公司
項目地點:福州
建筑面積:地上2916㎡,地下1742㎡
景觀面積:14000㎡
建成時間:2020年5月
建筑團隊:上海華策建筑設計事務所有限公司
室內設計:深圳市昊澤空間設計有限公司
景觀團隊:杭州伍道景觀設計有限公司
施工圖團隊:福建嘉博聯合設計股份有限公司
幕墻設計:福建省新廣廈工程設計研究院有限公司
攝影:BWStudio 筑映視覺